Kid-Grid_2.jpg
Marbles-Interior-altered.jpg
MSTR_IMAXExt01.jpg
MSTR_IMAXInt03.jpg
Exploris-Marble-Wall2.jpg
ExplorisMarbleWallDetail_724k.jpg
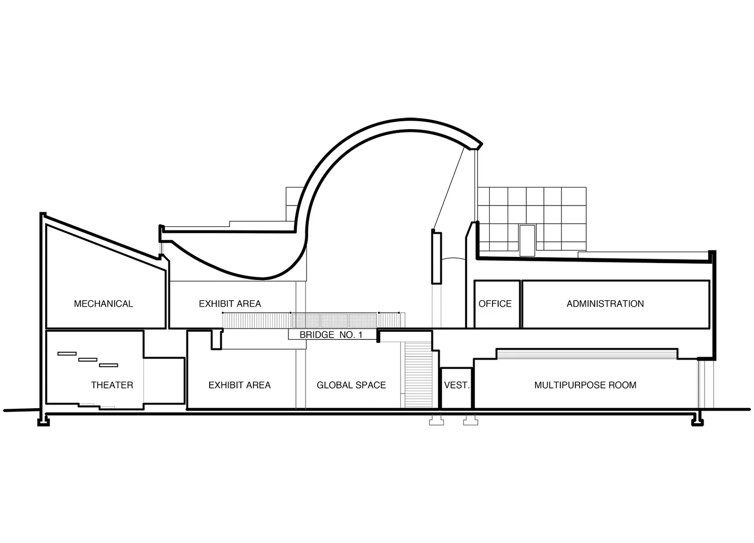
ExplorisSection.jpg
Exploris-Construction-2.jpg
ExplorisElevSouth.jpg
ExplorisElevWest.jpg
prev / next